The Sleek Shelter

Lake Mývatn, Iceland / 2024
With Alessio Liambo
This project, inspired by Iceland’s raw and untamed beauty, aims to create a haven for the skiing community. The design embraces the harsh yet stunning winter environment, providing a warm, welcoming refuge amidst the snow-clad wilderness.
The core concept behind the Iceland Ski Snow Cabin is to blend seamlessly with the pristine Icelandic landscape while offering a functional and cozy retreat for skiers. It draws from the minimalist and efficient use of space typical of Icelandic architecture, utilizing materials that reflect the surrounding environment.
Constructed primarily from aluminum, chosen for its durability and resistance to harsh weather conditions, the cabin leverages Iceland’s abundant geothermal energy for its aluminum production, making it locally produced and ecologically sound. Aluminum’s reflective quality allows the cabin to blend into the snowy surroundings, ensuring it can withstand extreme weather with minimal maintenance.
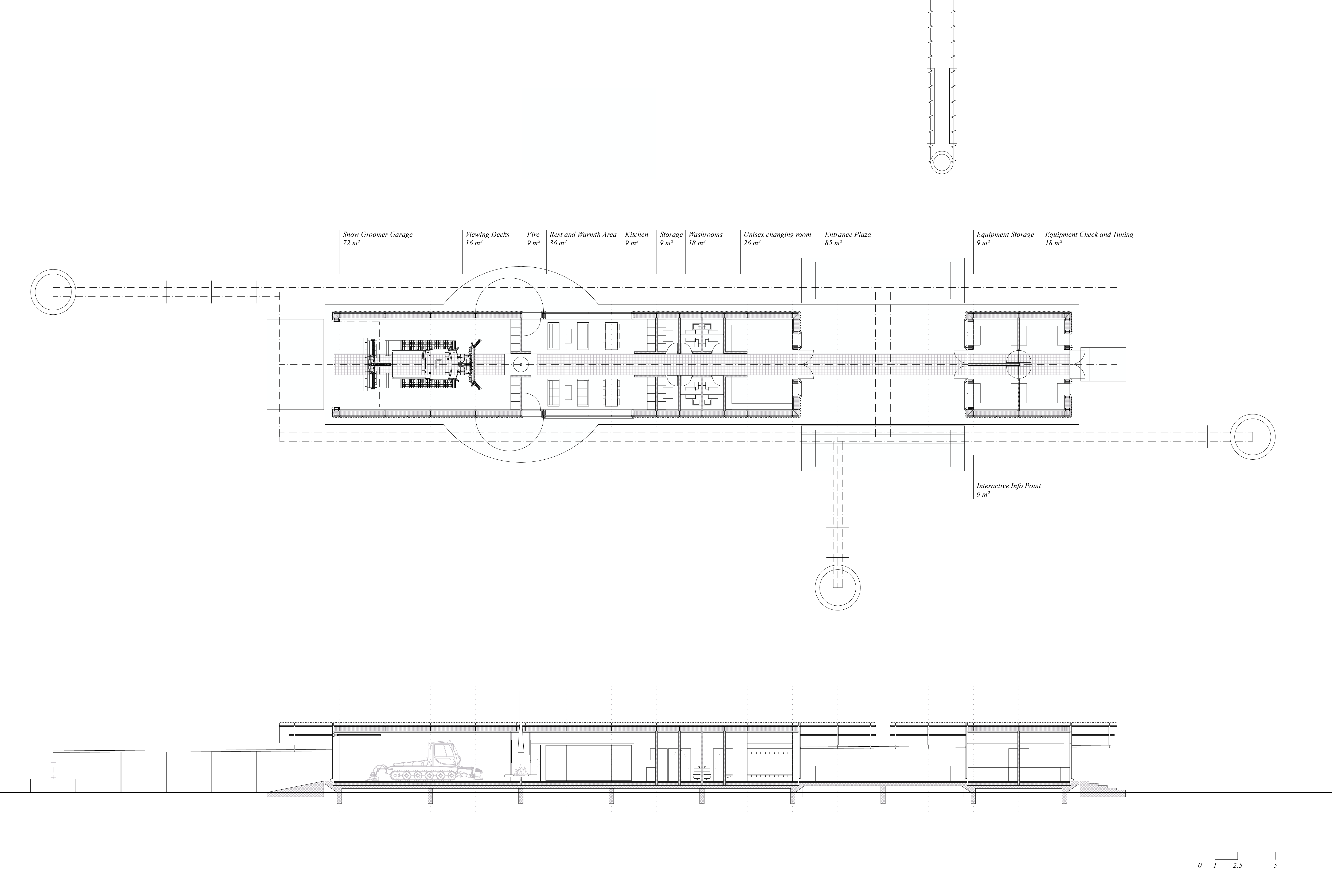
The building’s layout is meticulously designed along an axis, with all rooms aligned in an enfilade arrangement. This design provides a logical flow through the space, enhancing continuity and connection within the cabin.
A cozy resting space features a central fireplace that visually and functionally connects to the garage area. This fireplace creates a warm, inviting ambiance enjoyed from both spaces. The garage is seamlessly integrated, ensuring easy access while maintaining aesthetic harmony. To maintain tranquility, all technical and utility functions like storage and tuning stations are housed in a detached building, ensuring the main cabin remains a peaceful retreat.
The Iceland Ski Snow Cabin embodies the Icelandic winter spirit, offering skiers a sanctuary to relax, warm up, and recharge amidst their adventures. Its design, material choice, and spatial arrangement create an immersive experience celebrating Iceland’s majestic winter landscape.